Toggle navigation
Werk
Over ons
Nieuws
Contact
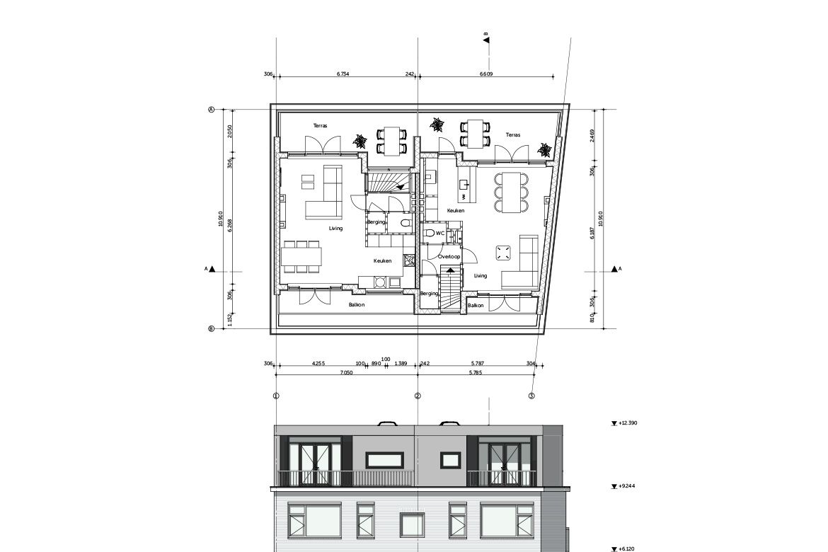
Opbouw Scheveningen
Dubbele opbouw in Scheveningen-dorp
Overzicht
Jaar
2015
Projectontwerpers
Sander Bouw, Joren Vis
Opdrachtgever
particulier
Status
Voorontwerp
Categorieën
Interieur
Woningbouw
Opbouw
Socials
Gerelateerd werk
Villa Molenlaankwartier
Herenhuis Hillegersberg
Huis aan zee
Geschakelde villa Kralingen
Dijkwoning aan de Rotte
PJ31
×
Close
Modal title
...