Het ontwerp geeft antwoord op de door de BNA kring Twente uitgeschreven prijsvraag ‘De top van Bischoff’. Op het dak van het voormalige Bischoff gebouw aan de markt in Hengelo wordt een configuratie van woningen geplaatst. De woningen hebben de verschijningsvorm van herkenbare bouwwerken zoals het huis en de kerk. Een groene plint, waarin terrassen zijn opgenomen, vormt het medium tussen het bestaande gebouw en de nieuwe woningen.


Jaar
2010  
Locatie
Hengelo  
Projectontwerpers
Sander Bouw, Joren Vis, Marc Vos  
Opdrachtgever
BNA Kring Twente  
Status
Prijsvraag  

BRINKTOP brengt een ode aan Hengelo. In een stadscentrum dat gebukt gaat onder anonieme blokkendozen wordt een leesbaar ensemble van woningen op het Bischoff gebouw geplaatst. Het ontwerp flirt op subtiele wijze met de geschiedenis van Hengelo: een brink met daaraan een kerk, een aantal huizen en een fabriek.

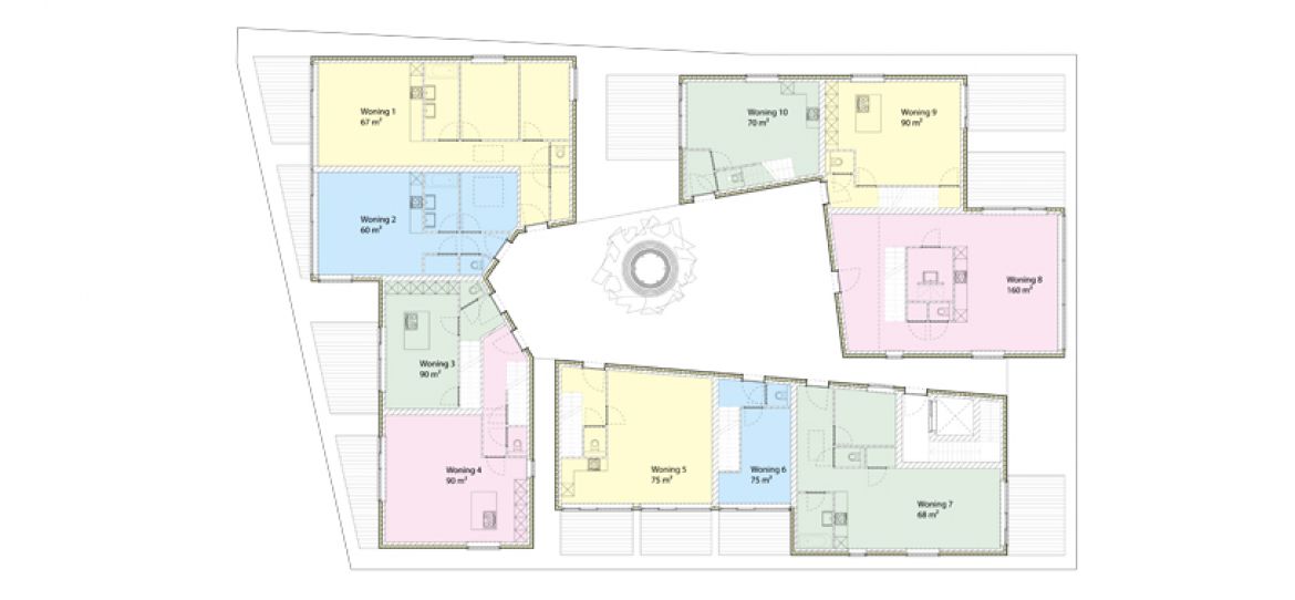
Een tiental woningen schikt zich rondom een centrale brink, die in belijning en materialisering duidelijk contrasteert met de uniformiteit van de gehele compositie. De als herkenbare archetypen vormgegeven woningen variëren van elkaar in omvang, plattegrond en uitzicht; elke woning is uniek en maakt kennis met een ander stukje Hengelo. Gemeenschappelijke deler is de groene plint, waarin op een bijzondere manier grote, beschutte dakterrassen zijn opgenomen. Deze constructieve plint, die dienst doet als duurzaam grasdak, volgt de daklijn van het Bischoff gebouw en toont door een contrasterend materiaalgebruik de overgang tussen de nieuwe optopping en het bestaande gebouw. Slechts één winkel maakt plaats voor de nieuwe entree van de woningen. Naast een trappenhuis met lift zijn hier ook individuele bergingen en een gemeenschappelijke fietsenstalling ondergebracht.

Wonen in de stad, wonen in het groen, wonen aan een brink: BRINKTOP verenigt deze paradoxale kwaliteiten op een niet-alledaagse manier met elkaar én de stad Hengelo.