Toggle navigation
Werk
Over ons
Nieuws
Vacatures
Contact
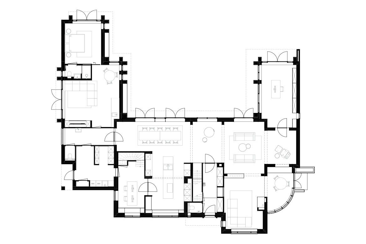
Dubbel woonhuis Voorburg
Het samenvoegen van een jaren '50 twee-onder-een kap tot een ruim gezinshuis
Overzicht
Jaar
2023
Locatie
Voorburg
Projectontwerpers
Joren Vis, Sander Bouw, Iris Uythof
Opdrachtgever
Particulier
Status
Gerealiseerd
Aannemer
Hoed Bouw
Interieurbouw
Form Makers
Constructeur
Geelhoed Engineering
Categorieën
Renovatie
Interieur
Woningbouw
Socials
Gerelateerd werk
Villa Molenlaankwartier
Herenhuis Hillegersberg
Huis aan zee
Geschakelde villa Kralingen
Dijkwoning aan de Rotte
PJ31
×
Close
Modal title
...