Toggle navigation
Werk
Over ons
Nieuws
Vacatures
Contact
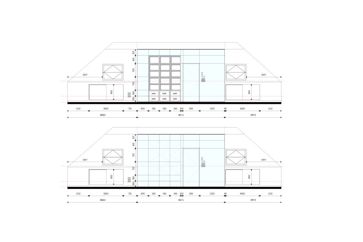
Studio Zoetermeer
Van zolder naar studio
Overzicht
Jaar
2015
Locatie
Zoetermeer
Projectontwerpers
Sander Bouw, Joren Vis
Opdrachtgever
Particulier
Status
Gerealiseerd
Aannemer
Euroconstruct
Interieurbouw
R-Design
Categorieën
Object
Interieur
Socials
Gerelateerd werk
Villa Molenlaankwartier
Herenhuis Hillegersberg
Huis aan zee
Geschakelde villa Kralingen
Dijkwoning aan de Rotte
PJ31
×
Close
Modal title
...