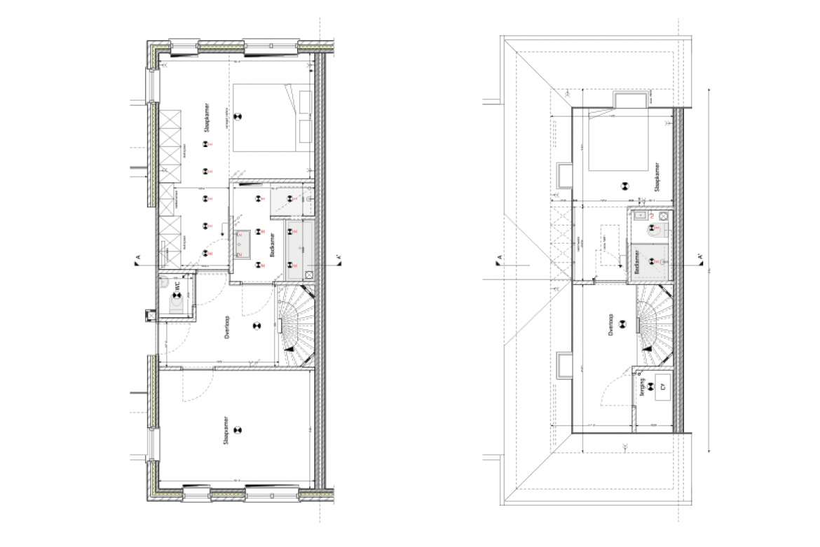
De bewoners van deze woning, gelegen aan de rand van Den Haag, speelden al een tijd met de gedachte om hun twee slaapverdiepingen op te knappen. De badkamer was gedateerd en bovendien voldeed de indeling niet meer aan het huidige gebruik. Tijdens een Architect aan tafel sessie zijn de mogelijkheden van verschillende verbouwingen onderzocht. De conclusie hiervan was helder: op beide verdiepingen zal de nadruk komen te liggen op de combinatie van een slaapkamer en een badkamer. De eerste verdieping zal voornamelijk gebruikt worden door de bewoners zelf, terwijl de zolderverdieping zal fungeren als gastenverblijf. 


Waar de badkamer op de eerste verdieping voorheen een donkere, afgesloten ruimte was, wordt deze nu bij de slaapkamer getrokken door middel van een translucente schuifdeur. Overbodige gangetjes, inbouwkasten en deuren worden verwijderd. Hierdoor ontstaat een riante en lichte slaapvleugel, waarbij slaapkamer en badkamer geleidelijk in elkaar over gaan. Een grote op maat gemaakte kastenwand biedt niet alleen ruimte voor kleding, maar heeft ook een relatie met de badkamer. Het blauwe gedeelte van de kast is geschikt voor handdoeken en ligt precies tegenover de eveneens blauwe doucheruimte.


Op de verdieping erboven wordt de voorheen volledig open ruimte verdeeld in een aparte ruimte voor de CV, een grote overloop en een slaapkamer met ensuite badkamer. De slaapkamer zal dienst doen als gastenverblijf. in deze ruimte blijft de volledige hoogte tot in de nok zichtbaar en worden twee opvallende elementen geplaatst. In het kleinste meubel bevindt zich een kleding- en boekenkast, terwijl er tegenover een kleine badkamer ligt. Via een deurtje boven de badkamer is het mogelijk om met een houten trap de vliering te bereiken.


Jaar
2014  
Locatie
Den Haag  
Projectontwerpers
Sander Bouw  
Status
Gerealiseerd  
Aannemer
Euroconstruct  
Interieurbouw
R-design interieurbouw