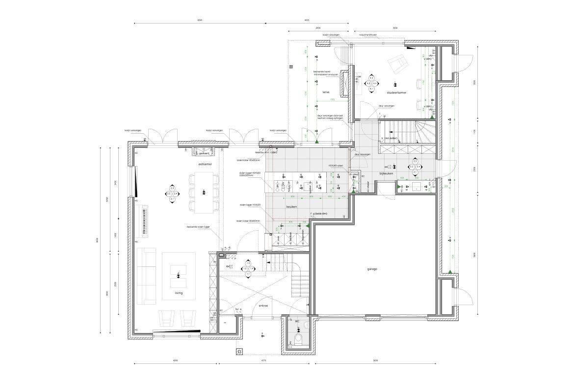
Deze jaren '80 villa heeft sinds de bouw geen veranderingen meer ondergaan. De woning ademt een landelijke, robuuste sfeer die niet aansluit bij de wensen van de opdrachtgever. De prachtige tuin rondom de woning is vanuit de woonkamer nauwelijks zichtbaar en bovendien moeilijk toegankelijk. Het ontwerp van FOAM voorziet in een ingrijpende verbouwing van de woning, waarbij voorgoed afscheid genomen wordt van het donkere karakter van het interieur. 


In de achtergevel komen op meerdere plekken openslaande deuren, zodat de tuin onderdeel gaat uitmaken van de woning. De huidige keuken wordt volledig opengebroken, waardoor een enorme leefkeuken ontstaat. Centraal staat het grote, witte kookeiland, met uitzicht op de tuin en de eetkamer. De kastenwand van de keuken vouwt zich om een hoek en herbergt ook een boekenkast. 

De huidige woning kent veel onbruikbare hoeken en nissen. Op een slimme manier worden deze plekken voorzien van maatmeubilair. Niet alleen onstaat hierdoor veel praktische opbergruimte, het brengt ook openheid, licht en ruimte terug in het interieur. De door massief eiken gedomineerde entree krijgt meer relatie met de woonkamer door een ranke, stalen taatsdeur. De trap wordt vervangen door een eveneens minimalistisch, stalen exemplaar. 

Op de eerste verdieping is een gastenvleugel gecreeërd, voorzien van een eigen toilet en badkamer. Hiertoe is de bestaande bestaande badkamer gesplitst in een grote en een kleine badkamer. 

De verbouwing wordt begin 2015 opgeleverd.


Jaar
2014  
Locatie
Valkenswaard  
Projectontwerpers
Sander Bouw, Joren Vis  
Status
In uitvoering  
Aannemer
Twee rechtse Handen Bouwservice  
Constructeur
J.A. Breijer