Al geruime tijd hebben de opdrachtgevers uit Zoetermeer de wens om in het centrum van de stad te gaan wonen. Toen er een appartement vrij kwam in hun favoriete wijk ging deze wens in vervulling. Hoewel in potentie interessant, kent het appartement wel twee uitdagingen. In de eerste plaats is het appartement behoorlijk gedateerd en moet het volledig gemoderniseerd worden. Daarnaast levert de familie aanzienlijk in op ruimte; het appartement is met 65m2 compact te noemen. 


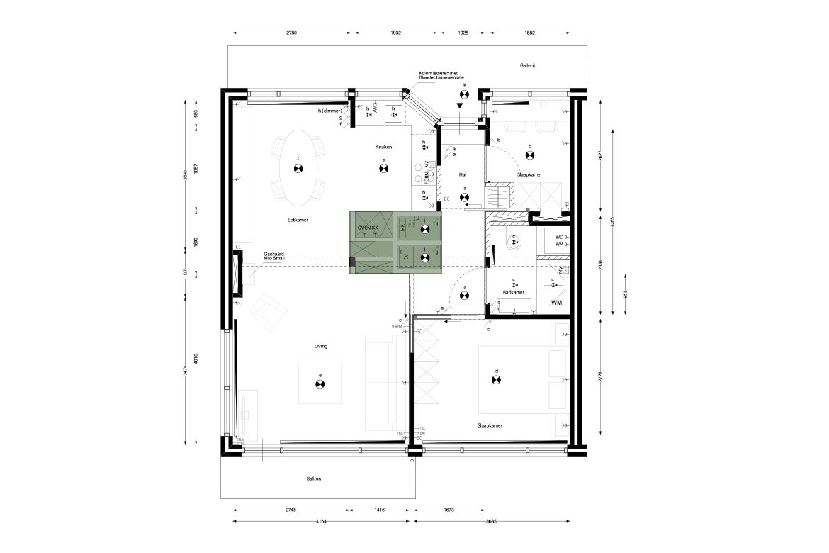
Tijdens een Architect aan tafel sessie is een schetsplan gemaakt waarbij openheid, rust en bergruimte de belangrijkste speerpunten zijn. Alle overbodige wanden, nissen en deuren worden verwijderd. Het appartement wordt gestript tot de essentie. De keuken krijgt een nieuwe plaats in een voormalige slaapkamer, waardoor deze bij de woonkamer getrokken wordt. Centraal in de woning staat een opvallend, groen meubel. Hierin is zoveel mogelijk bergruimte gecreeërd. In het meubel bevindt zich onder andere een aantal keukenkasten, de CV-ruimte, de meterkast en een boekenkast.

De twee slaapkamers en de badkamer bevinden zich achter een ogenschijnlijk gesloten, witte wand. Hierin zijn op subtiele wijze deuren verwerkt, enkel herkenbaar aan een deurklink. Zowel de badkamer als de keuken kenmerkt zich door een optimaal gebruik van de ruimte, een strakke uitstraling en een ingetogen kleur- en materiaakeuze.  



Jaar
2014  
Locatie
Zoetermeer  
Projectontwerpers
Sander Bouw  
Opdrachtgever
Fam. Bottemanne  
Status
Gerealiseerd  
Aannemer
Maxxis Bouwservice  
Interieurbouw
R-design interieurbouw