Deze bungalow uit de jaren ’70 wordt ingrijpend ver- en uitgebouwd tot een volwassen villa. Het originele ontwerp van de opdrachtgevers zelf is verder gefinetuned en uitgewerkt tot een realiseerbaar project.

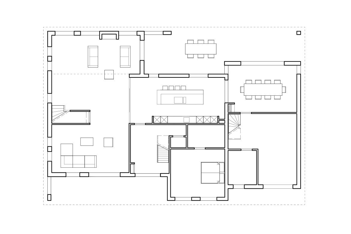
Door het plaatsen van een nieuwe aanbouw, deels op de plek van de bestaande woning, ontstaat een nieuwe schakeling van volumes: de originele woning lijkt visueel de aanbouw te worden, terwijl de daadwerkelijke aanbouw de rol van het hoofdvolume op zich neemt.


De aanbouw bestaat grotendeels uit een ruime vide, waar zowel de woonkamer als de study op de eerste verdieping aan grenst. Een trap in de woonkamer verbindt deze ruimtes direct met elkaar. Onderdeel van de verbouwing is de realisatie van een grote overkapping aan de achterzijde, grenzend aan de keuken en eetkamer. Hierdoor is er het hele jaar een beschut, verwarmd terras beschikbaar. 

Ruimtelijk wordt de puzzel afgemaakt door ook aan de voorzijde van de woning een luifel te creëeren, die ervoor zorgt dat de sprong in de voorgevel onder één mantel past.

Met de bouw wordt in het najaar van 2015 gestart.




Jaar
2015  
Locatie
Nieuwegein  
Projectontwerpers
Joren Vis, Sander Bouw  
Opdrachtgever
Particulier  
Status
Gerealiseerd  
Aannemer
Romijn  
Constructeur
Buro Storm  
Categorieën
Interieur Woningbouw Renovatie
Socials