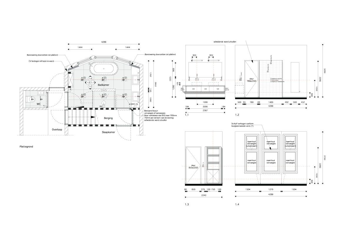
Voor onze opdrachtgevers, een jong gezin uit de Rotterdamse wijk Kralingen, ontwierpen we een warme, eigentijdse badkamer. De badkamer, met een ongewone vorm, grenst direct aan het dakterras van de woning. Met de nieuwe opzet van de badkamer wordt volop geprofiteerd van het vele daglicht, terwijl er voor de douche voldoende privacy overblijft.

Vanuit de opdrachtgevers bestond de uitdrukkelijke wens een badkamer te realiseren met warme materialen, maar met een strakke, moderne look. Om dit te bewerkstelligen is er gekozen voor een lichtgrijze vloertegel en plint van Mosa, een donkere Beton-ciré wand achter de spiegels en inbouwkranen- en douche. De wanden zijn niet betegeld maar gestuukt, met uitzonder van de inloopdouche. Hier is een kleine, mat-witte tegel toegepast.


Er is veel aandacht besteed aan de details: het wastafelmeubel is maatwerk van Houtmerk, waardoor de kast precies tussen de beide schuine wanden past. Ook de schappen op de muur en de opbergkast in de badkamer zijn maatwerk. Het ontwerpen van deze meubels en elementen maakten onderdeel uit van onze werkzaamheden.

De plafond- en wandverlichting is van Deltalight, waarbij er gekozen is voor het bijzondere u-vormige armatuur aan de wand om de structuur van het Beton-ciré op de wand extra te benadrukken.



Jaar
2015  
Locatie
Rotterdam  
Projectontwerpers
Joren Vis, Sander Bouw  
Opdrachtgever
Particulier  
Status
Gerealiseerd  
Aannemer
Euroconstruct  
Interieurbouw
Houtmerk