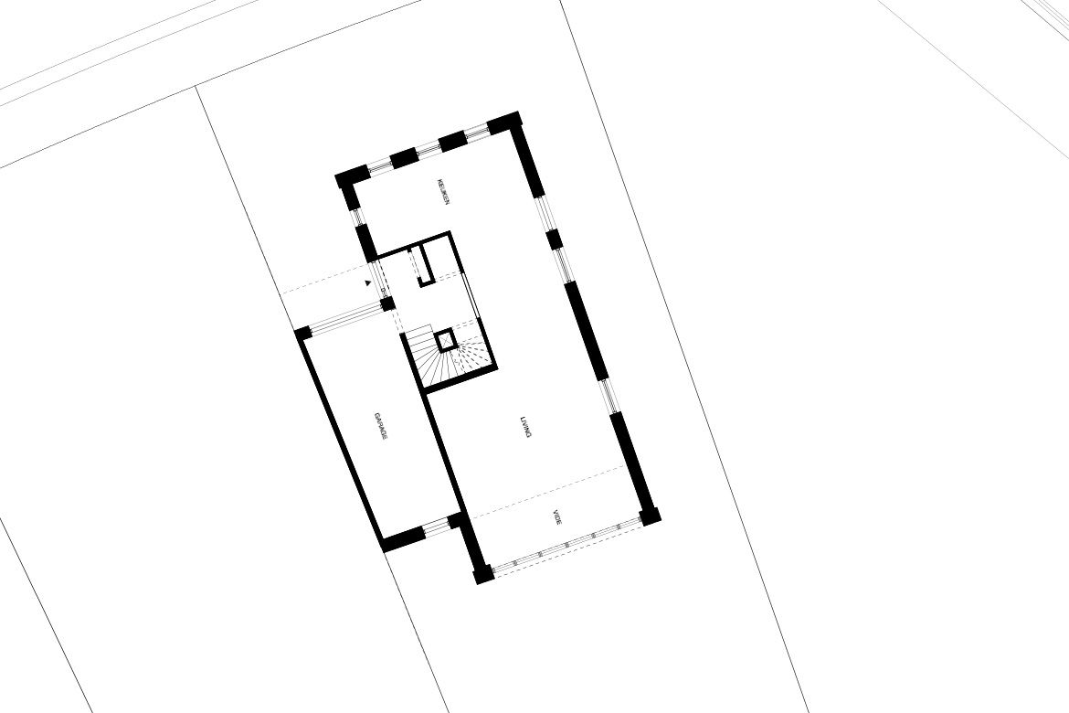
Deze woning in het Zuid-Limburgse Bemelen, in de buurt van Maastricht, maakt deel uit van de nieuwbouwwijk Bemelen de Steeg. Het kavel van ongeveer 350m2 is riant, maar vormt door een smalle frondbreedte tegelijkertijd een interessante uitdaging voor de plaatsing van een half-vrijstaande woning. Het concept dat FOAM voor de woning bedacht laat zich als volgt kenmerken: een moderne, langwerpige hoeve met twee kopgevels die ieder een eigen karakter hebben. De voorgevel is strak en ingetogen, de achtergevel verrassend en open. 


Het langwerpige volume met schuine kap wordt aan weerszijden voorzien van markante kopgevels. Deze kopgevels zijn net iets breder en hebben bovendien een afwijkende materialisering. De zijgevels zijn voorzien van donkergrijze leien, zowel op de gevel als het schuine dak. Door de dakgoot dusdanig vorm te geven dat deze in het dakvlak ligt, lopen gevel en dak geleidelijk in elkaar over. De twee kopgevels zijn contrasterend wit en voorzien van stucwerk. Waar de voorkant niet wil schreeuwen om aandacht, bevindt de grootste verrassing van de woning zich aan de achterzijde. De gevel is hier volledig open en geeft de woonkamer een bijzonder uitzicht over het Limburgse heuvellandschap. De vide boven de woonkamer benadrukt het gevoel van licht, ruimte en uitzicht.


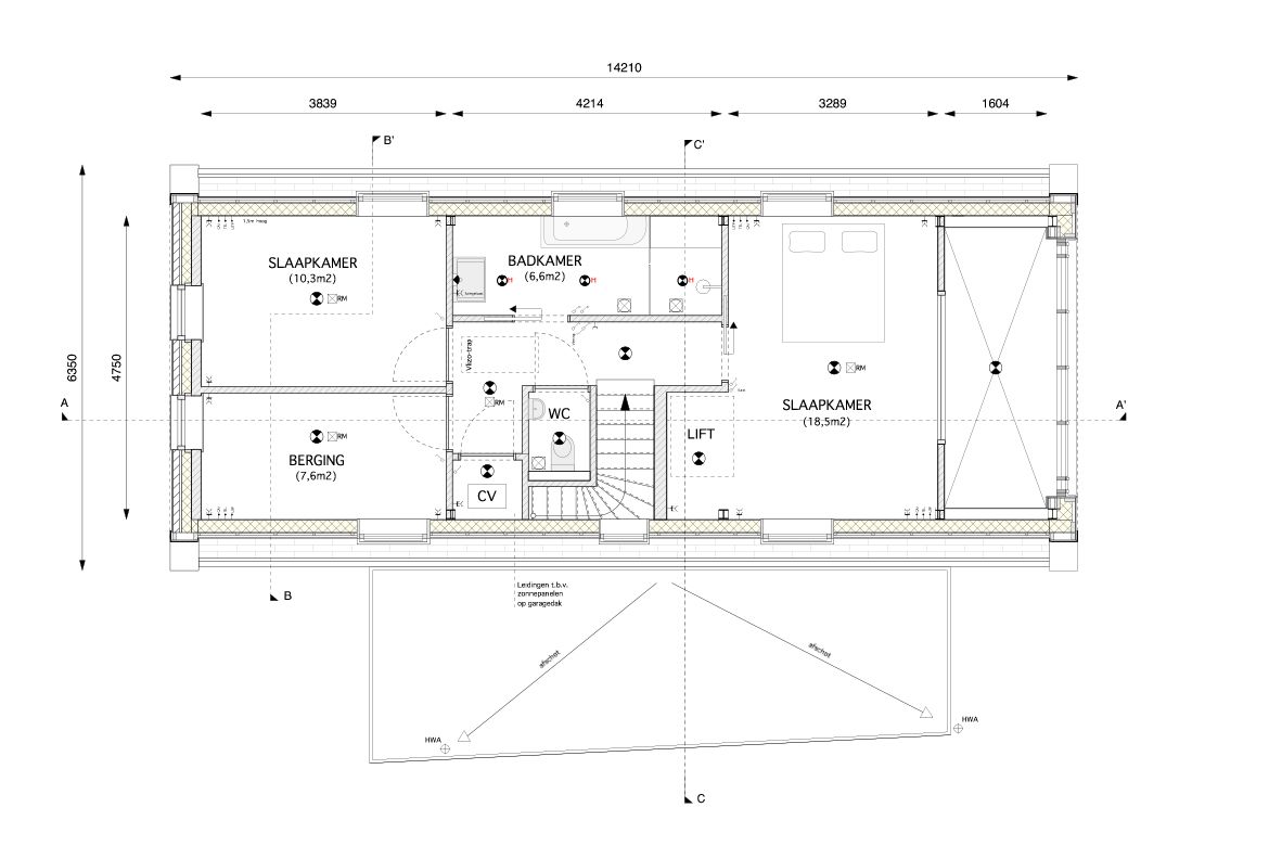
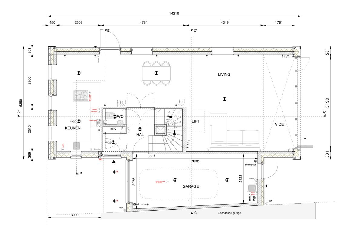
De toekomstige bewoners van de woning wilden graag een huis dat levensloopbestendig is. In eerste instantie wordt dan vaak gedacht aan de plaatsing van een slaapkamer en een badkamer op de begane grond van de woning. In dit geval is ervoor gekozen om alle slaapkamers en de badkamer op de eerste verdieping te situeren. Door nu echter al na te denken over de mogelijke plaatsing van een lift, is het niet noodzakelijk om de belangrijkste vertrekken gelijkvloers te maken. Gezien de geringe breedte van het kavel, bespaart dit gunstige vierkante meters op de begane grond van de woning. Deze zal nu enkel gebruikt worden als entree, woonkamer, keuken en garage.


Jaar
2014  
Locatie
Bemelen  
Projectontwerpers
Sander Bouw, Joren Vis  
Status
Gerealiseerd  
Aannemer
Eijkerbouw  
Constructeur
Crousen AB  
Categorieën
Woningbouw Levensloopbestendig
Socials