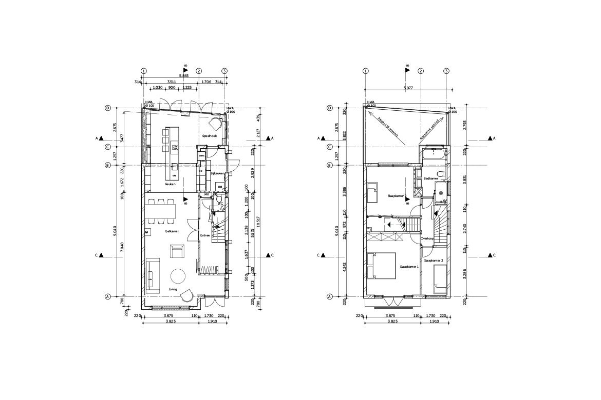
In een relatief onbekend stukje Rotterdam genaamd Overschie staat deze mooie jaren '30 woning. Onze opdrachtgevers kochten de woning, die hard toe was aan een grondige opknapbeurt. We ontwierpen een nieuwe indeling van de begane grond, inclusief een ruime aanbouw aan de achterzijde. Door te werken met lichte, open materialen ontstaat een sterk contrast tussen de originele woning en de nieuwe aanbouw, waardoor duidelijk is waar oud ophoudt en het nieuwe begint.


De extra ruimte wordt in het interieur benut voor het creeƫren van een ruime woonkeuken en bijkeuken. Een klein deel van de originele buitenmuur komt in het interieur terug als ruwe baksteen muur waarin de ovens van de keuken verwerkt zijn.

Op de verdiepingen worden alle ruimtes weer opgeknapt en naar hedendaagse standaarden gebracht.

Met de renovatie wordt begin 2016 begonnen.



Jaar
2016  
Projectontwerpers
Joren Vis, Sander Bouw  
Opdrachtgever
Particulier  
Status
In uitvoering  
Aannemer
Euroconstruct  
Interieurbouw
Theuns Interieurbouw  
Constructeur
Buro Storm  
Categorieƫn
Renovatie Woningbouw Interieur Rotterdam
Socials