RAVOTTUH is een initiatief van een groep Rotterdammers die onderschrijven hoe belangrijk buitenspelen is voor kinderen. We denken dat als kinderen het naar hun zin hebben, iedereen het naar zijn zin heeft! Vanuit onze expertise en ervaring weten we als geen ander dat het lastig buiten spelen is voor de kinderen in de stad. RAVOTTUH heeft als doel om zoveel mogelijk Rotterdamse kinderen te laten spelen, springen, ontdekken, tuinieren, klauteren, oogsten, ontdekken en dwalen in hun eigen buurt!


Wij willen een aantal plekken in Rotterdam bouwen waar kinderen (en hun ouders) avontuurlijk kunnen spelen in een groene omgeving. Zo ontstaan nieuwe groene, uitdagende ontmoetingsplekken voor jong en oud. We gaan de plekken zoeken, vinden, ontwerpen, bouwen en gebruiken met bewoners. Dit doen we volgens de RAVOTTUH-methodiek. Na de aanleg organiseren we drie jaar lang activiteiten zodat de plekken intensief gebruikt worden. Door de hele stad ontstaat zo een web van groene speelplekken. Plekken die samen zijn gebouwd en worden onderhouden door bewoners, bedrijven en gemeente. 

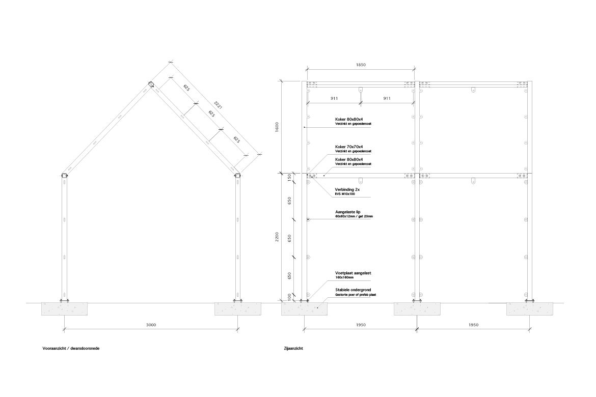
Op elke plek komt een Ravottuh-huisje: een archetypisch bouwwerk dat bestaat uit een stalen frame met wisselende invullingen. De mogelijkheden voor deze invullingen zijn eindeloos en op elke plek anders. Zo kan er bijvoorbeeld een opbergkast, een klimwand, een plantenkas of een speelhuisje in gemonteerd worden. 

FOAM architecten is één van de initiatiefnemers van Ravottuh. Het project behaalde in het voorjaar van 2013 een finaleplaats bij het Stadsinitiatief in Rotterdam. 



Jaar
2015  
Locatie
Rotterdam  
Projectontwerpers
Sander Bouw, Joren Vis  
In samenwerking met
Buurtlab, De Speeldernis, Wenken.nl, Buro Lina, Stichting Abela, HERO DC, Annemiek Bongers, Annemieke Westerink  
Opdrachtgever
Stadsinitiatief Rotterdam  
Status
In uitvoering  
Website
Ravottuh.org  
Categorieën
Object Openbare ruimte Cultureel
Socials