Deze familie uit de Rotterdamse wijk Zevenkamp speelde al een tijd met het idee om hun woonkamer te vergroten. Door tijdens een Architect aan tafel sessie te laten zien wat de mogelijkheden zijn van een aanbouw aan de achterzijde van de woning, kreeg de familie inzicht in de consequenties van een dergelijke verbouwing. De conclusie bleek al snel: de aanbouw hoeft niet al te groot zijn, is een afgesloten ruimte en heeft bovenal een bijzonder en uitgesproken uiterlijk. 


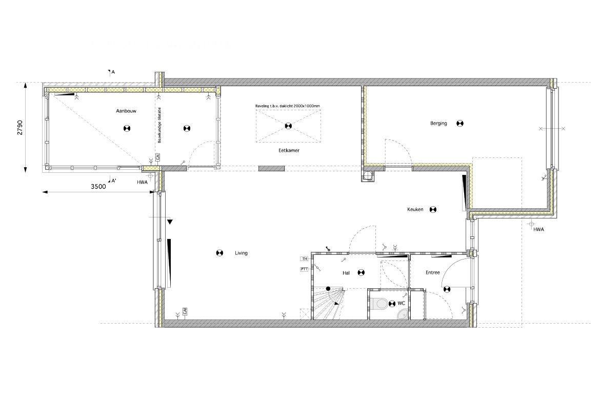
Deze wensen zijn vertaald in een compacte aanbouw aan de achterzijde van ongeveer 3,5 meter bij 2,5 meter. In de aanbouw zal een tv- en muziekruimte komen die volledig afgesloten dient te kunnen worden van de woonkamer. Om dit te bereiken is ervoor gekozen om de houten kozijnen, die gebruikt worden in de gevels van de aanbouw, terug te laten komen in het interieur. Op die manier ontstaat een lichte ruimte, die bovendien door een subtiele knik in het dak voor extra daglicht en uitzicht zorgt. De aanbouw krijgt een volledig houten uitstraling door de toepassing van meranti gevelbekleding en meranti kozijnen. Er is geen dakrand zichtbaar; deze bevindt zich achter de houten gevelbekleding. 


Naast de extra vierkante meters die de aanbouw met zich mee brengt, krijgt het gedeelte rondom de huidige eetkamer een flinke metamorfose. Precies boven de eettafel wordt een riant daklicht geplaatst, waardoor de ruimte ineens een stuk lichter wordt. Aan de nok van het nieuwe daklicht worden lampen bevestigd die precies boven de eettafel hangen. Om het plaatje compleet te maken is een boekenkast ontworpen die precies tussen twee bestaande wanden geplaatst wordt.

De aanbouw voor deze twee-onder-een kap woning in Zevenkamp is daarmee niet alleen aanleiding geweest om extra ruimte te creëren, maar vormt tevens een bijzondere toevoeging aan de huidige woon- en eetkamer.


Jaar
2012  
Locatie
Rotterdam  
Projectontwerpers
Sander Bouw, Joren Vis  
Status
Gerealiseerd  
Aannemer
Stam Bouw b.v.  
Interieurbouw
Van Dongen Interieurbouw  
Constructeur
IMd Raadgevende Ingenieurs