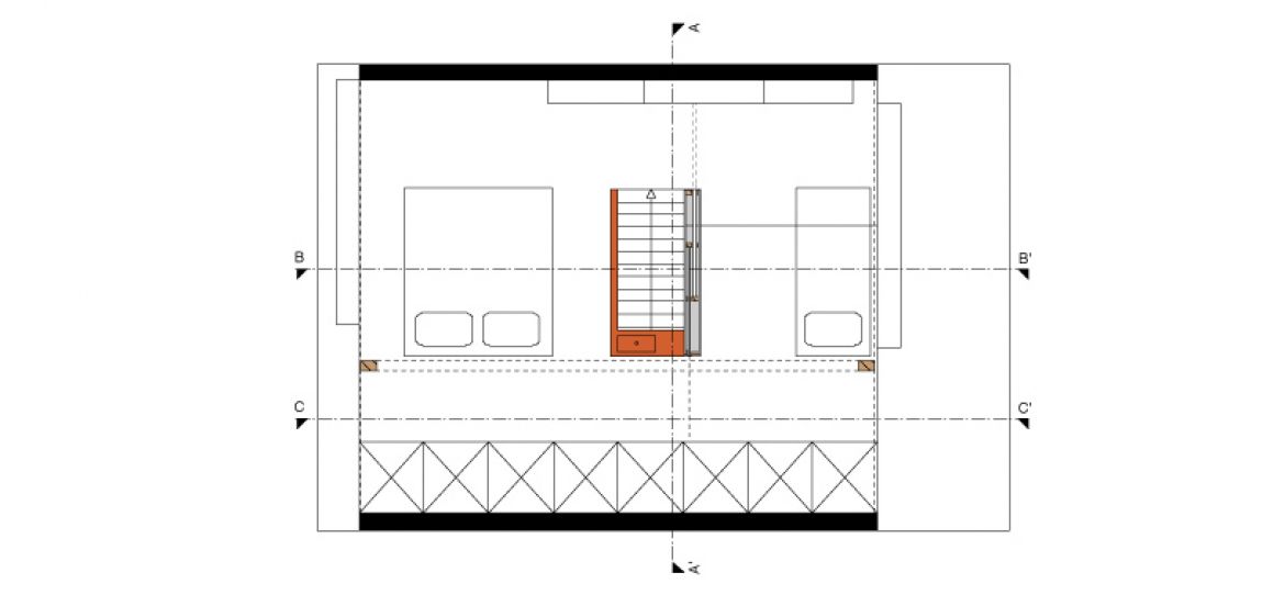
Voor een familie in Utrecht ontwierpen we een nieuwe indeling van de zolder, die voorheen in gebruik was als berging. Het karakteristieke oude spant én de wens om de zolder één ruimte te houden vormen het uitgangspunt van de nieuwe zolder als loft.


Jaar
2012  
Locatie
Utrecht  
Projectontwerpers
Joren Vis  
Opdrachtgever
Fam. Baartman / Janssen  
Status
In uitvoering  

Door in het ontwerp uit te gaan van meubelstukken in plaats van standaard muren en deuren blijft de zolder net zo open als voorheen, waardoor licht en lucht door de ruimte kunnen stromen. Het hoogtepunt van het ontwerp wordt gevormd door een in het oog springend wandmeubel met daarin zowel het trapgat, een wastafel én een tweetal schuifdeuren verwerkt. Hierdoor is het mogelijk om de zolder snel op te splitsen in een tweetal kamers, waardoor een extra logeerkamer of (tijdelijke) opbergruimte ontstaat.

Aan de lange zijde van de zolder is een grote nieuwe wandkast geplaatst, waarin voldoende ruimte aanwezig is om de oude bergfunctie van de zolder over te nemen. Door in deze kast ook de CV en de wasmachine op te nemen blijven deze in het vervolg buiten zicht. De punt van deze kast, in de nok, kan optioneel worden gebruikt als boekenkast of als bergkast. In de kast is een horizontale balk opgenomen die overeenkomt met de ligger in het spant, zodat de vorm van het spant verder wordt benadrukt.

Met de realisatie van dit ontwerp wordt ook de laatste verdieping van deze fraaie jaren-30 woning tot het niveau van de al eerder gerenoveerde begane grond en eerste verdieping gebracht.