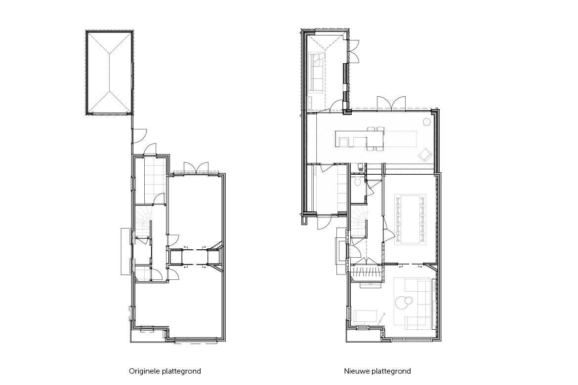
In een rustige straat in Hillegersberg (Rotterdam) verbouwden we dit van origine relatief kleine hoekpand tot een ruim gezinshuis. Een nieuwe aanbouw biedt ruimte aan keuken en bijkeuken, en verbindt het huis met de voormalige garage, die opnieuw is opgebouwd als tuinkamer. Op de aanbouw staat een (kleine) opbouw om op die manier de kleine studeerkamer op de 1e verdieping iets te vergroten.


De zolder is uitgebreid met dakkapellen aan de zij- en achterkant waardoor ook daar nu voldoende ruimte is voor twee kinderslaapkamers en een tweede badkamer. Het hoogteverschil met de tuin is hier verzacht door het aanbrengen van een brede trap tussen de eetkamer en nieuwe keuken, waardoor tevens in de keuken een plafondhoogte van ruim 3 meter ontstaat.

De stalen puien in de aanbouw en tuinkamer zijn van Tudor kozijnen.


Jaar
2022  
Locatie
Rotterdam  
Projectontwerpers
Joren Vis, Sander Bouw, Laura Aletrino  
Opdrachtgever
Particulier  
Status
Gerealiseerd  
Aannemer
Piece of Cake  
Constructeur
Geelhoed Engineering