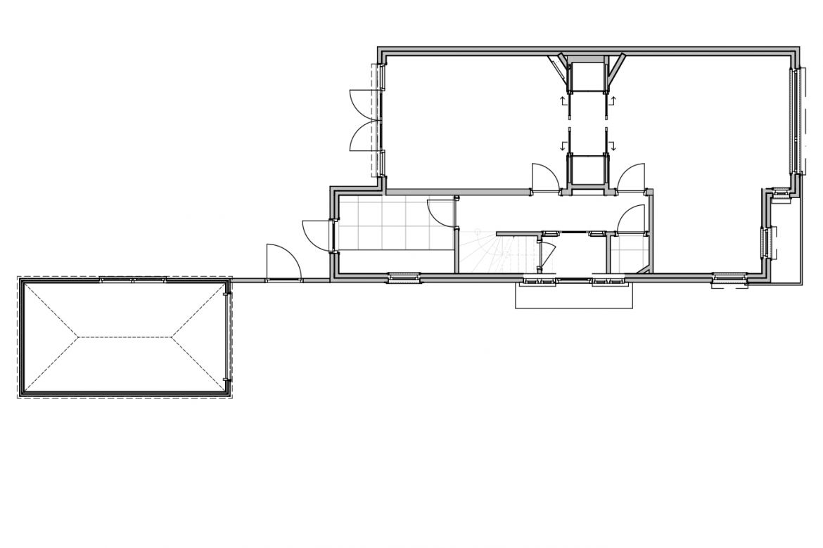
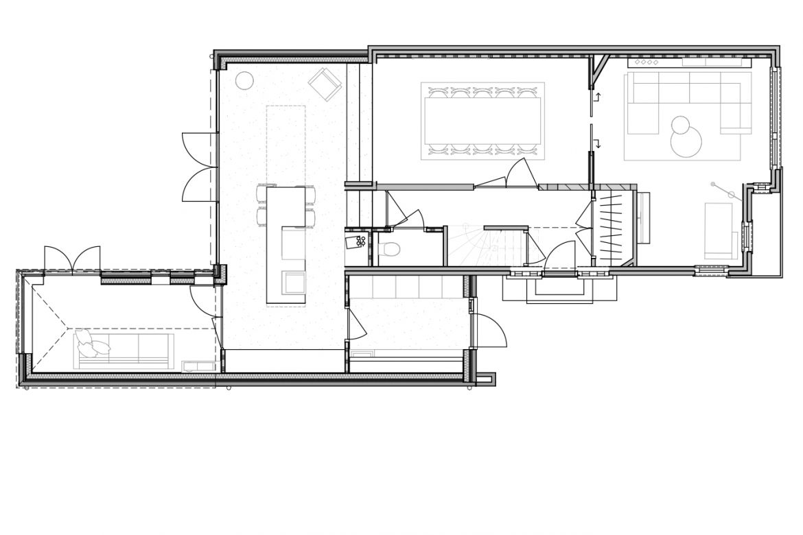
In een rustige straat in Hillegersberg (Rotterdam) staat een hoekpand waar we in 2022 zijn gestart met onze opdracht. We verbouwden dit van origine relatief kleine hoekpand tot een ruim gezinshuis. Het werk is ondertussen afgerond en we zijn erg blij met het resultaat!
Bekijk ook onze Instagram pagina voor meer informatie over het project.

